Quadrilocale in vendita

Frossasco, Via Bivio
€ 193.000
Prezzo aggiornato
4 locali 4 locali
97 Mq 97 Mq
2 bagni 2 bagni

Quadrilocale in vendita

Frossasco, Via Bivio

Descrizione annuncio

Proponiamo in vendita appartamento quadrilocale situato a Frosasco, in posizione strategica e comodo a tutti i principali servizi.

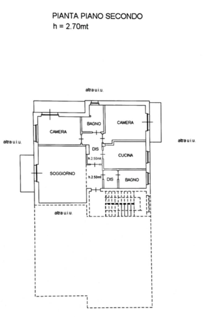
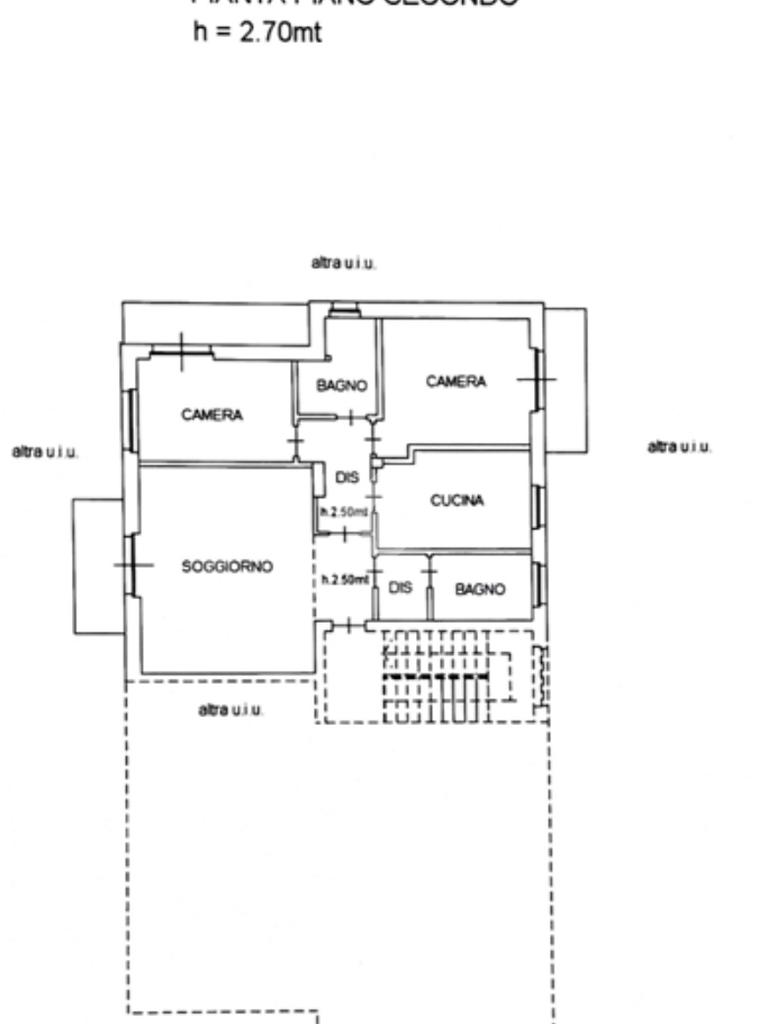
L’appartamento è stato completamente ristrutturato un anno fa utilizzando materiali di alta qualità e finiture di pregio. L’ingresso conduce direttamente all’ampio salotto, che funge da fulcro della casa e collega tutti gli ambienti: la cucina abitabile separata, camera da letto, una cameretta e i due bagni. La disposizione interna risulta funzionale e ben distribuita, con locali luminosi e ben sfruttabili.

L’immobile dispone di tre balconi, uno con affaccio sul salotto e gli altri due sulle camere, tutti completamente rifatti a nuovo. È presente aria condizionata canalizzata, tapparelle elettriche, infissi con doppi vetri, portoncino blindato e controsoffitti con illuminazione a LED. Il riscaldamento è a pavimento con gestione indipendente per ogni ambiente, la caldaia è nuova ed è stata installata solo un anno fa. Gli impianti elettrico e idraulico sono stati rifatti interamente ed è già presente la predisposizione per l’impianto di antifurto.

Completano la proprietà un box auto con porta sezionale nuova dotata di illuminazione, un posto auto interno nel cortile e una porzione di giardino privato. Soluzione ideale per chi cerca un’abitazione moderna, efficiente e pronta da abitare, in una posizione comoda e ben servita.

Mostra tutto

Nelle vicinanze

Trasporto pubblico Trasporto pubblico
Frossasco (bivio)
Frossasco (bivio)
40 m
Frossasco (str. delle Moie)
Frossasco (str. delle Moie)
310 m
Scuole Scuole
Scuole
1,1 Km
Farmacia Farmacia
Farmacia
1,7 Km
Farmacia Comunale 14
1,7 Km
Supermercati Supermercati
basko
180 m
ekom
200 m
Negozi Negozi
Negozi
1,6 Km
Bar Bar
Bar
60 m
Coffee & More
270 m
Zero 121 Caffè Ristoro
310 m
Ristorante Bar Bellini
1,6 Km
Ristoranti Ristoranti
288 Sushi Wok
1,5 Km
Lo Chalet
2,8 Km
Mostra tutto

Caratteristiche

Rif.:
61165181
Piano:
2 di 2 (Piano alto)
Box:
1
Posti auto:
1
Balconi:
3
Camere da letto:
2
Mostra tutto
Prezzo Prezzo
€ 193.000
Rata mutuo Rata mutuo
€ 915 / mese
Spese annue Spese annue
€ 0
Proponi il tuo prezzoProponi il tuo prezzo

Classe Energetica

D
D
D
D
D
D
D
D
D
Anno di costruzione:
1965
Riscaldamento:
Autonomo
Tipo impianto:
A pavimento
Tipo alimentazione:
Metano

Prezzo ridotto di €1 (3%%)

Ti interessa visionare l'immobile?

Fissa un appuntamento  Fissa un appuntamento

Richiedi informazioni

Clicca su Leggi per aprire l'informativa
* Questi campi sono obbligatori

Calcola il tuo mutuo

Semplice e senza impegno
Anticipo

( % )
Mutuo

( % )

pochi semplici passi

inserisci i tuoi dati
Questionario completato
Grazie per aver richiesto un appuntamento senza impegno con un nostro Consulente del Credito e Assicurativo.

Hai inserito correttamente tutti i dati necessari e a breve riceverai una e-mail con un link da convalidare per inviare i tuoi dati.
Affiliato
Cumiana Case Sas
Via Paolo Boselli, 52 10040 Cumiana (TO)

Il nostro staff


  • Luca Barbatano
    Collaboratore

  • Michela Gillo
    Affiliata

  • Michelle Sacco
    Coordinatrice

  • Francesco L'Abbate
    Affiliato
Via Paolo Boselli, 52 10040 Cumiana (TO)
Zona: Cumiana-Frossasco-Roletto-Cantalupa-Piscina
Mostra su mappa
Affiliato
Cumiana Case Sas
Via Paolo Boselli, 52 10040 Cumiana (TO)

2026 Tecnocasa Franchising S.p.A. - P. IVA 08365160152 - Via Monte Bianco 60/A 20089 Rozzano (MI). Ogni agenzia ha un proprio titolare ed è autonoma. Privacy policy | Policy utilizzo | Cookie policy