Casa di corte in vendita

Cumiana, Strada Tetti San Martino - Tetti San Martino
€ 350.000
Prezzo aggiornato
7 locali 7 locali
250 Mq 250 Mq
3 bagni 3 bagni

Casa di corte in vendita

Cumiana, Strada Tetti San Martino - Tetti San Martino

Descrizione annuncio

Cumiana, in posizione ben esposta e soleggiata, in zona collinare e inserita in un contesto tranquillo ma non troppo distante dal centro del paese, proponiamo in vendita una soluzione semi-indipendente libera su due lati, caratterizzata dal fascino autentico dei rustici piemontesi.

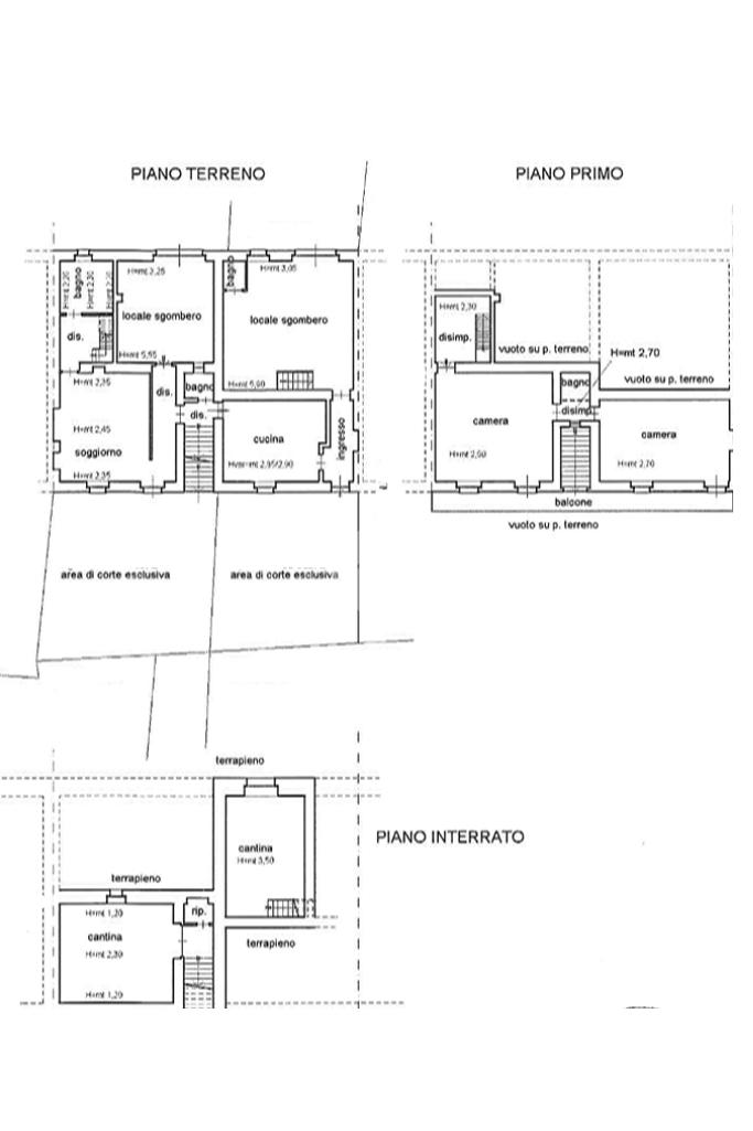
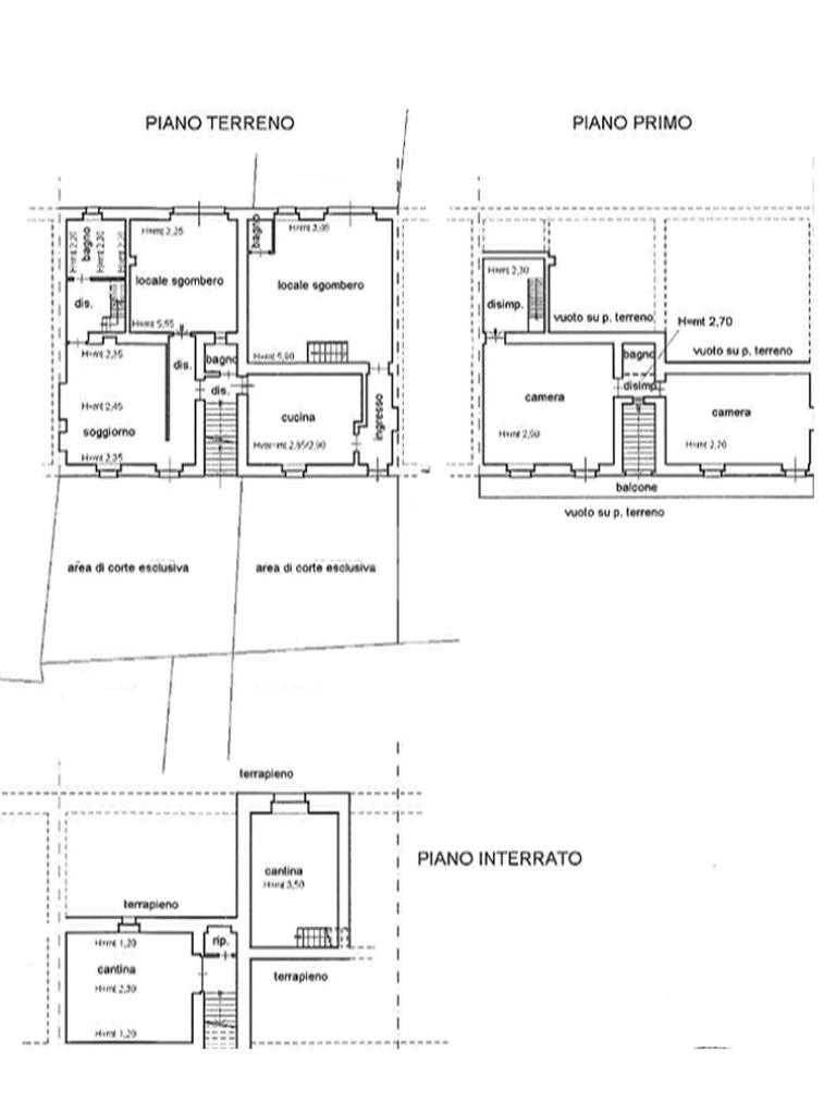
L’abitazione si sviluppa su due livelli. Al piano terra l’ingresso conduce a un disimpegno che collega la cucina abitabile, mentre un secondo disimpegno accompagna al soggiorno, ambiente accogliente impreziosito da un maestoso caminetto e da pietre a vista che ne esaltano il carattere rustico. Sempre sullo stesso livello sono presenti due bagni: uno di servizio e un secondo bagno di dimensioni più ampie.

Il primo piano è composto da un ulteriore disimpegno che ospita una piacevole zona libreria e conduce alla zona notte, formata da due camere da letto di generosa metratura, entrambe con accesso al balcone. Tra le due camere è presente il bagno dedicato al piano.

La proprietà è stata oggetto di un attento intervento di restauro circa dieci anni fa, volto a valorizzare e conservare i materiali originali e gli elementi storici della casa. I dettagli in legno, gli antichi chiavistelli e i davanzali in pietra contribuiscono a mantenere intatto il carattere autentico dell’immobile. Anche la copertura è stata curata nei dettagli: il tetto è coibentato e presenta copertura in marsigliese e coppi.

Completano la proprietà tre cantine, tutte con volte a vista ben conservate, di cui una dedicata alla conservazione delle botti di vino. Per gli appassionati è inoltre incluso un vigneto di circa 2.000 mq, elemento che rende questa soluzione particolarmente interessante per chi desidera vivere a contatto con la tradizione e la natura.

Il cortile frontale è in comune, mentre sul retro dell’abitazione si trova un’ampia dependance affacciata sul giardino privato di 600mq in cui è presente anche una tettoia. In questa zona sono inoltre presenti due magazzini caratteristici, in linea con lo stile dell’immobile, caratterizzati da mattoni a vista e travi in legno, impreziositi dalla presenza di attrezzature di mestieri antichi utilizzate come elementi d’arredo, che contribuiscono a creare un ambiente suggestivo e ricco di storia. All’interno della proprietà è inoltre presente un pozzo.

Il riscaldamento può avvenire tramite caminetto e potager, soluzione che richiama la tradizione delle case di campagna, oppure tramite impianto a termosifoni alimentato da caldaia per chi preferisce un sistema più tradizionale.

Una proprietà dal grande fascino, ideale per chi cerca un’abitazione ricca di carattere, con spazi generosi e dettagli storici, immersa nella tranquillità della zona collinare ma comoda ai servizi e al centro del paese.

Mostra tutto

Nelle vicinanze

Trasporto pubblico Trasporto pubblico
Cumiana (Elastor)
Cumiana (Elastor)
910 m
Cumiana (fraz. Pieve)
Cumiana (fraz. Pieve)
1,0 Km
Scuole Scuole
Scuole
500 m
Scuola Don Bosco - Cumiana
2,5 Km
Farmacia Farmacia
Farmacia Cavaglià
1,6 Km
Farmacia Ruffino
2,8 Km
Supermercati Supermercati
Basko
1,9 Km
Alimentaria Erika
2,6 Km
Negozi Negozi
Negozi
2,7 Km
Bar Bar
Bar
1,2 Km
enfant prodige
1,7 Km
La Roche
2,7 Km
Ristoranti Ristoranti
Ristoranti
1,2 Km
trattoria del bivio
1,6 Km
voglia di pizza
2,5 Km
Mostra tutto

Caratteristiche

Rif.:
61189483
Piano:
2 di 2 (Piano su più livelli)
Posti auto:
2
Balconi:
2
Camere da letto:
2
Arredamento:
Assente
Mostra tutto
Prezzo Prezzo
€ 350.000
Rata mutuo Rata mutuo
€ 1.650 / mese
Spese annue Spese annue
€ 0
Proponi il tuo prezzoProponi il tuo prezzo
Immobile valutato con T·Valuta

Classe Energetica

F
F
F
F
F
F
F
F
F
Anno di costruzione:
1930
Riscaldamento:
Autonomo
Tipo impianto:
A stufa
Tipo alimentazione:
Altro

Prezzo ridotto di €1 (99%%)

Ti interessa visionare l'immobile?

Fissa un appuntamento  Fissa un appuntamento

Richiedi informazioni

Clicca su Leggi per aprire l'informativa
* Questi campi sono obbligatori

Calcola il tuo mutuo

Semplice e senza impegno
Anticipo

( % )
Mutuo

( % )

pochi semplici passi

inserisci i tuoi dati
Questionario completato
Grazie per aver richiesto un appuntamento senza impegno con un nostro Consulente del Credito e Assicurativo.

Hai inserito correttamente tutti i dati necessari e a breve riceverai una e-mail con un link da convalidare per inviare i tuoi dati.
Affiliato
Cumiana Case Sas
Via Paolo Boselli, 52 10040 Cumiana (TO)

Il nostro staff


  • Michela Gillo
    Responsabile

  • Francesco L'Abbate
    Affiliato
Via Paolo Boselli, 52 10040 Cumiana (TO)
Zona: Cumiana-Frossasco-Roletto-Cantalupa-Piscina
Mostra su mappa
Affiliato
Cumiana Case Sas
Via Paolo Boselli, 52 10040 Cumiana (TO)

2026 Tecnocasa Franchising S.p.A. - P. IVA 08365160152 - Via Monte Bianco 60/A 20089 Rozzano (MI). Ogni agenzia ha un proprio titolare ed è autonoma. Privacy policy | Policy utilizzo | Cookie policy